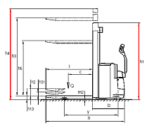
Bauhöhe

Die Bauhöhe gibt den Abstand zwischen Boden und höchsten Punkt des Flurförderfahrzeuges an.

Bei Fahrzeugen mit Hubeinrichtung werden zwei Bauhöhen angegeben:

  • die niedrigste Bauhöhe (Hubgerüst eingefahren)
  • die größte Bauhöhe (Hubgerüst ausgefahren)

Übersicht